Продажа недвижимости

1300 Brickell Bay Dr 4401

Апартаменты с 6 спальнями на продажу в Brickell House, Miami

$11,900,000
870 247 000 руб.
Цена - 8 %
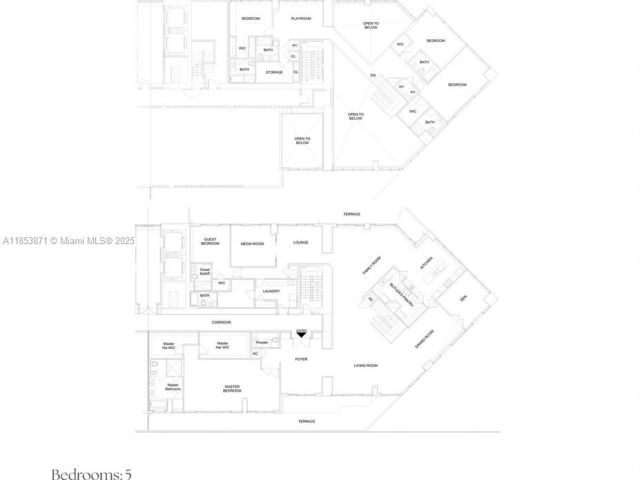
Спальни
6
Ванн
8
Жил.пл. фут2
6521 Sq. Ft
Цена за фут2
$1825
Жил.пл. м2
606 м2
Цена за м2
1 436 475 ₽
Обзор:
% Изменение: - 8 %
Квартира № 4401
Площадь 6521 Sq. Ft.
Площадь м2 606 м2
Дней на рынке 283
Годовой налог 101894
Животные Conditional,Yes
Вид на воду 1
Мест в гараже 5
Год постройки 2014
MLS# A11853871

Описание:

Изыскательно переработанный двухэтажный пентхаус от Togu Design и мастерски казненный Sabal Luxury Builder в самом сердце Brickell! Охватывающая 6521 SF интерьеров. Растущее 20-футовое потолки и ударное стекло от пола до потолка с широким видом на воду. Богатый черный ореховый настил повсюду. Резиденция имеет кухню шеф-повара с открытой концепцией с бытовой техникой и отдельной кухней подготовительной кухни. Экспансивный первичный люкс с негабаритной спа-палатой и индивидуальными калифорнийскими шкафами. Современная система Savant Automation. Строительные удобства включают бассейн на крыше и Sundeck, 50 -футовый бассейн, зал владельца, фитнес -центр. Расположенный в эпицентре Брикелл с обеденной с собой, шоппинга + ночная жизнь.

Характеристики недвижимости:

Адрес
FL, Miami
Улица
Brickell Bay Dr
Номер дома
1300
Вид недвижимости
Жилая недвижимость / Кондоминиум
Этажей
44
Вид
Залив, Океан
Особенности окон
Жалюзи, Ударопрочные стекла
Архитектурный стиль
Небоскребы
Полы
Кафельная плитка
Выход к воде
Bayfront
Кондиционеры
Центральное кондиционер
Безопасность
ElevatorSecured, SecuredGarageParking, LobbySecured, Other
Частота оплаты
Ежемесячно
Последние изменения
2026-05-01 12:04:53
Подробнее
Особенности экстерьера
  • Безопасные ударопрочные двери
Особенности интерьера
  • BuiltInFeatures
  • BedroomOnMainLevel
  • Гардероб шкаф
  • DiningArea
  • SeparateFormalDiningRoom
  • DualSinks
  • EatInKitchen
  • Вход первый этаж
  • Кухня остров
  • CustomMirrors
  • Другое
  • Кладовая
  • SeparateShower
  • Bar
  • Гардеробные Комнаты
  • Лифт
Бытовая техника
  • Сушилка
  • Электроплита
  • Микроволновая печь
  • Other
  • Холодильник
Удобства комплекса
  • Клуб
  • Фитнес-центр
  • Other
  • Бассейн
  • Лифт
Парковка
  • Крытый паркинг
  • Гостевое место
  • OnStreet
  • TwoOrMoreSpaces
  • Консьерж на парковке
Подробнее

Brickell House на карте

Свяжитесь с нами
Brickell House - Condo - Miami
Brickell House
контактная информация
Заказать звонок
Продажа квартиры #4401 - фото 6429080
Заказать просмотр
Смотрите не выходя из дома
Квартиры в продаже в Brickell House